Description
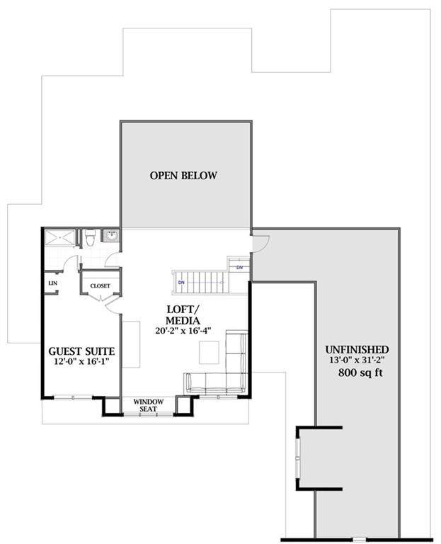
To be built on over 3 private acres in the highly desirable Creekview High School district, this custom home offers 3,830 finished above-grade square feet of thoughtfully designed living space, featuring 4 bedrooms plus a den, 3.5 bathrooms, a 3-car garage, and the opportunity to expand with an included $100,000 credit toward finishing 1,500 additional square feet in the basement. Built by Wellbee Custom Homeslicensed contractors with over 30 years of experience in Metro Atlantathis floorplan blends timeless craftsmanship with modern flexibility to create a home that perfectly suits your lifestyle. This beautiful open-concept residence includes 5" white oak flooring, custom cabinetry, and elegant finishes throughout. The main level features three bedrooms, including the spacious primary suite, plus a dedicated office/den ideal for working from home or flexible living. At the heart of the home, the well-appointed kitchen overlooks the large fireside living room and offers easy access to the walk-in pantry, butler's pantry, and mudroom for everyday ease. A covered porch and deck provide a peaceful outdoor setting, perfect for dining, entertaining, or simply relaxing in nature. A concrete driveway leads from the street to the garage, offering both convenience and curb appeal. Upstairs, you'll find a private fourth bedroom with a full bath and a generous loft/media roomideal for guests, teens, or a second living area. The basement level adds exciting potential for customization, with up to 1,500 square feet of finished space included in the packagewhether you envision a home theater, private gym, guest suite, or wine cellar, the possibilities are yours to design. Additional upgrade options include a Party Barn or Equestrian Barn starting at $120,000, and an outdoor fireplace with a gas insert for cozy evenings year-round. Located in Cherokee County with easy access to GA-400 and I-575, and just a short drive to downtown Alpharetta and Canton, this exceptional property offers space, privacy, and convenience in one of North Georgia's most sought-after school districts. No HOA.
-
4BEDS
-
3.01ACRES
-
4BATHS
-
11/2 BATHS
-
5,330SQFT
-
$319$/SQFT
School Information
Description
To be built on over 3 private acres in the highly desirable Creekview High School district, this custom home offers 3,830 finished above-grade square feet of thoughtfully designed living space, featuring 4 bedrooms plus a den, 3.5 bathrooms, a 3-car garage, and the opportunity to expand with an included $100,000 credit toward finishing 1,500 additional square feet in the basement. Built by Wellbee Custom Homeslicensed contractors with over 30 years of experience in Metro Atlantathis floorplan blends timeless craftsmanship with modern flexibility to create a home that perfectly suits your lifestyle. This beautiful open-concept residence includes 5" white oak flooring, custom cabinetry, and elegant finishes throughout. The main level features three bedrooms, including the spacious primary suite, plus a dedicated office/den ideal for working from home or flexible living. At the heart of the home, the well-appointed kitchen overlooks the large fireside living room and offers easy access to the walk-in pantry, butler's pantry, and mudroom for everyday ease. A covered porch and deck provide a peaceful outdoor setting, perfect for dining, entertaining, or simply relaxing in nature. A concrete driveway leads from the street to the garage, offering both convenience and curb appeal. Upstairs, you'll find a private fourth bedroom with a full bath and a generous loft/media roomideal for guests, teens, or a second living area. The basement level adds exciting potential for customization, with up to 1,500 square feet of finished space included in the packagewhether you envision a home theater, private gym, guest suite, or wine cellar, the possibilities are yours to design. Additional upgrade options include a Party Barn or Equestrian Barn starting at $120,000, and an outdoor fireplace with a gas insert for cozy evenings year-round. Located in Cherokee County with easy access to GA-400 and I-575, and just a short drive to downtown Alpharetta and Canton, this exceptional property offers space, privacy, and convenience in one of North Georgia's most sought-after school districts. No HOA.
Related Properties
Listings identified with the FMLS IDX logo come from FMLS, are held by brokerage firms other than the owner of this website and the listing brokerage is identified in any listing details. Information is deemed reliable but is not guaranteed.
If you believe any FMLS listing contains material that infringes your copyrighted work, please click here to review our DMCA policy and learn how to submit a takedown request.
© 2025 First Multiple Listing Service, Inc. Data last updated 2025-12-11T00:04:00.283. For issues regarding this website, please contact BoomTown.
