Description
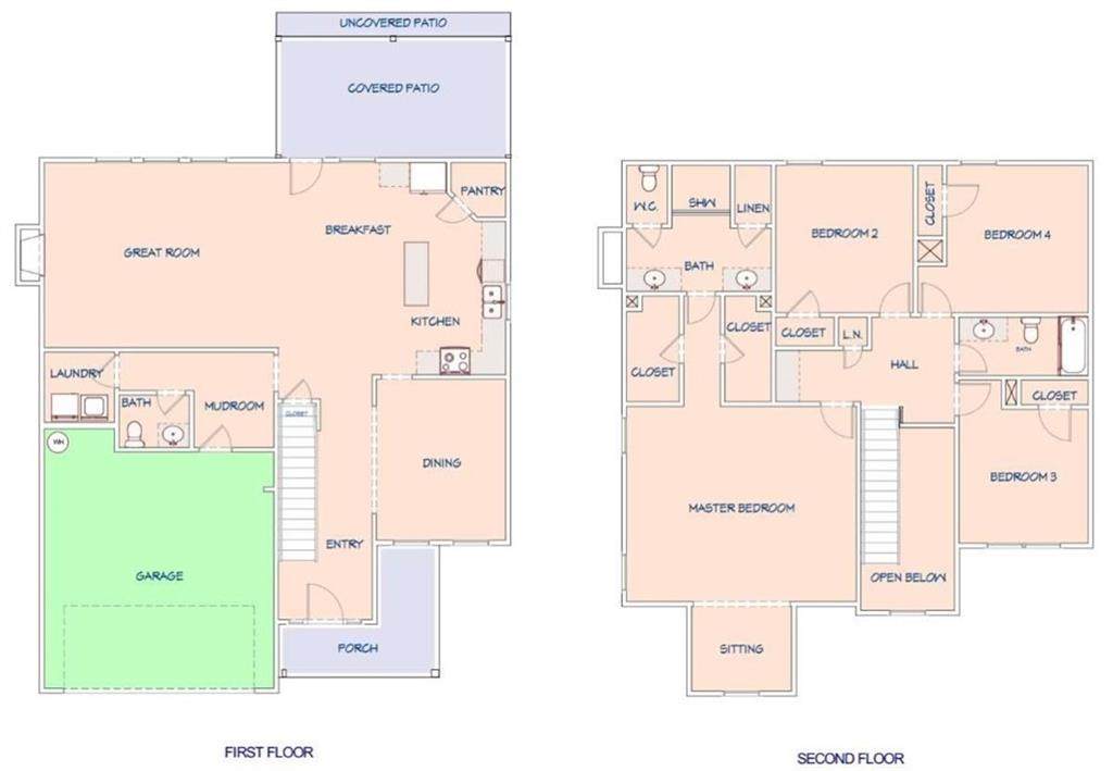
Welcome to the Cottonwood by A&R Communities! This beautiful home is located in Lula Ga, a short commute to surrounding areas: Gainesville Ga and Habersham County Ga. This home features 4 Bedrooms all on the upper level of the home. The Secondary bedrooms share a common bathroom. The master bedroom features His & Hers Walk in closets. with two separate vanity's with stone counter tops. On the main level of the home you will find the a half bath, and living room / dining room combo with a beautiful fireplace. Out side you'll find a back covered patio and a beautiful front porch. Don't miss the chance to make this amazing home yours!
-
4BEDS
-
0.51ACRES
-
2BATHS
-
11/2 BATHS
-
2,599SQFT
-
$154$/SQFT
School Information
Description
Welcome to the Cottonwood by A&R Communities! This beautiful home is located in Lula Ga, a short commute to surrounding areas: Gainesville Ga and Habersham County Ga. This home features 4 Bedrooms all on the upper level of the home. The Secondary bedrooms share a common bathroom. The master bedroom features His & Hers Walk in closets. with two separate vanity's with stone counter tops. On the main level of the home you will find the a half bath, and living room / dining room combo with a beautiful fireplace. Out side you'll find a back covered patio and a beautiful front porch. Don't miss the chance to make this amazing home yours!
Listings identified with the FMLS IDX logo come from FMLS, are held by brokerage firms other than the owner of this website and the listing brokerage is identified in any listing details. Information is deemed reliable but is not guaranteed.
If you believe any FMLS listing contains material that infringes your copyrighted work, please click here to review our DMCA policy and learn how to submit a takedown request.
© 2025 First Multiple Listing Service, Inc. Data last updated 2025-11-09T11:03:33.74. For issues regarding this website, please contact BoomTown.
